Constructures Logo
DomovO násSlužbyProjektyPublikácieKontakt

PROJEKTY

Prezrite si naše realizované projekty a presvedčte sa o kvalite našej práce

3D model objektu
2025

Rodinný dom

Novostavba rodinného domu

3D model objektu
2025

Obchodno-predajné priestory

Novostavba montovanej železobetónovej haly

Vstupná obhliadka
2025

Žeriavová dráha

Nosná konštrukcia žeriavovej dráhy

3D model objektu
2025

Administratívny objekt

Ohlásenie stavebných úprav pre administratívny objekt

3D model objektu
2025

Objekty zázemia

Objekty zázemia tenisového kurtu

Statický výpočet
2025

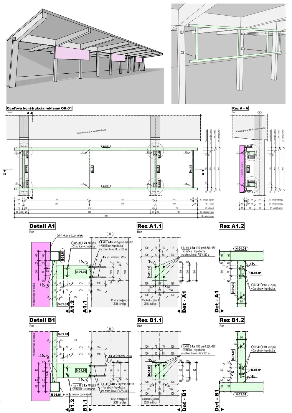
Obchodno-predajné priestory

Novostavba montovanej železobetónovej haly

Detaily
2025

Obchodno-predajné priestory

Novostavba montovanej železobetónovej haly

Podklad z architektúry
2025

Rodinný dom

Novostavba rodinného domu

Výstuž železobetónových konštrukcií
2024

Administratívny objekt

Administratívny objekt autoškoly

Statický výpočet
2024

Ortopedická klinika

Overenie odolnosti konštrukcie krovu

Realizačný postup
2024

Úprava bytu

Nové dverné otvory v stenách

3D model objektu
2024

Poľnohospodárska univerzita

Pavilón BH poľnohospodárska univerzita

Vykonávací projekt
2024

Obchodno-predajné priestory

Prestavba obchodno-predajných priestorov

Fotografia z výroby
2024

Úprava bytu

Úprava bytu

3D model objektu
2024

Objekt McDonald's

Objekt občianskej vybavenosti McDonald's

3D model objektu
2024

Rodinný dom

Rekonštrukcia rodinného domu

Fotografia zo stavby
2024

Rodinný dom

Rekonštrukcia rodinného domu

3D model objektu
2024

Rodinný dom

Novostavba rodinného domu

3D model objektu
2024

Rodinný dom

Rekonštrukcia rodinného domu s prístavbou

Zameranie porúch
2024

Pasportizácia porúch

Pasportizácia porúch Vajnorského kanála

Zameranie skutkového stavu
2024

Skladový objekt

Zameranie skutkového stavu skladového objektu

3D model objektu
2024

Polyfunkčný objekt

Novostavba polyfunkčného objektu v Holíči

3D model objektu
2024

Bytový dom

Prestavba s nadstavbou bytového domu

3D model objektu
2024

Obchodno-predajné priestory

Novostavba montovanej železobetónovej haly

Návrh sanácie prvkov krovu
2024

Obecný úrad

Rekonštrukcia obecného úradu

3D model objektu
2024

Rodinný dom

Rekonštrukcia s prístavbou rodinného domu